4237 sqft
Retail property (high street) to rent in Foleshill Road, Coventry, CV6
£80,000 per annum
£80,000 per annum
Retail property (high street) to rent in Foleshill Road, Coventry, CV6
ShortlistKey features
- Prime corner trading position on Foleshill Road — one of Coventry's busiest arterial retail corridors
- Landmark former Lloyds Bank building with instant high-street presence and brand visibility
- 4,237 sq ft (393 sq m) of versatile accommodation across ground and first floors
- Class E consent — suitable for retail, café/restaurant, convenience, medical, professional services or showroom
- Densely populated catchment with strong daily footfall and passing vehicle traffic
- Just over one mile from Coventry city centre, with direct links to the M6, A444 and Coventry Railway Station
- Private rear parking for 3–4 vehicles — a rare advantage on Foleshill Road
- Ideal for national operators entering Coventry or established franchisees expanding their estate
- New leasehold opportunity — flexible terms available by negotiation
- Marketed by Tutis Estates, the leading commercial agent
Land your brand on one of Coventry's busiest retail parades.
Foleshill Road carries thousands of vehicles and shoppers daily through one of the city's most densely populated and commercially active corridors — just over a mile from Coventry city centre and within easy reach of the M6, A444 and Coventry Railway Station. For operators entering Coventry or franchisees scouting a strong second or third site, trading pitches of this calibre rarely become available.
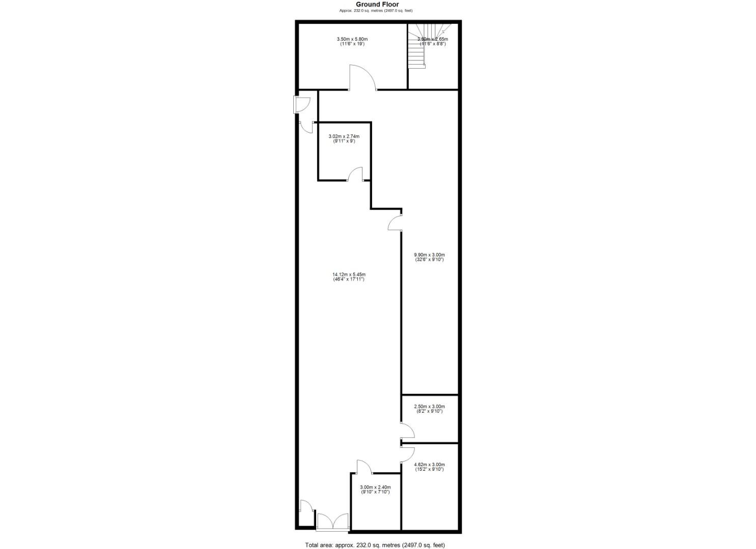
The former Lloyds Bank at 531 Foleshill Road offers a landmark corner position with 4,237 sq ft (393 sq m) of well-configured accommodation — 2,425 sq ft on the ground floor and 1,812 sq ft at first floor — plus 3–4 private parking spaces to the rear. The building is solidly constructed, highly visible, and suits a wide range of Class E uses including retail, food and beverage, convenience, medical, professional services or showroom.
Foleshill Road carries thousands of vehicles and shoppers daily through one of the city's most densely populated and commercially active corridors — just over a mile from Coventry city centre and within easy reach of the M6, A444 and Coventry Railway Station. For operators entering Coventry or franchisees scouting a strong second or third site, trading pitches of this calibre rarely become available.
The former Lloyds Bank at 531 Foleshill Road offers a landmark corner position with 4,237 sq ft (393 sq m) of well-configured accommodation — 2,425 sq ft on the ground floor and 1,812 sq ft at first floor — plus 3–4 private parking spaces to the rear. The building is solidly constructed, highly visible, and suits a wide range of Class E uses including retail, food and beverage, convenience, medical, professional services or showroom.
At a glance- Ground floor: 2,425 sq ft (225 sq m)
- First floor: 1,812 sq ft (168 sq m)
- Rear parking: 3–4 spaces
- Rent: £80,000 per annum exclusive
- Rateable Value: £43,250
- EPC: available on request
- Tenure: leasehold — terms by negotiation
Secure the unitTutis Estates is the leading commercial agent in Coventry. To arrange a viewing or request further information, contact the office today.
Viewing policyPlease note that, prior to arranging a viewing of the commercial premises, we will require either proof of financial standing or a business plan for the proposed venture. This is a standard pre-qualification step before access is granted.
17 Property images

















Location
//=SimilarListings::widget($property);?>


















